BLOCKPROFILE NL DUTCH WINDOWS
Blockprofile NL
Dutch windows
They fit perfectly into distinctive Dutch architecture.
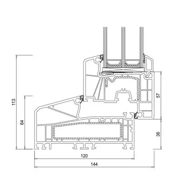
We are manufacturer of Dutch windows using the Aluplast IDEAL 7000 NL and IDEAL 8000 NL systems. Such windows are perfectly adapted to the Dutch architectural style. Therefore, NL systems perfectly match the standard installation depth typical for this market, which is 120 mm. We can also combine them with various variants of 85 mm wide sashes, resulting in a wide range of configuration possibilities.
Sashes of these systems, in addition to the characteristic wide door frames, can also be equipped with external rebates, which provide extra benefits. Thanks to this convenience, the installation of windows in buildings made of facing brick (clinker) becomes simple and aesthetic – no masonry processing required.
By adequate matching the Dutch style, our windows provide functionality, energy efficiency and aesthetic appearance. This design is in harmony with the specific architecture of the Netherlands. It is an excellent choice for those who want to maintain the authenticity and beauty of the Dutch style in their home.
Thermal comfort
The new Blockprofile NL windows with a width of 85 mm, are direct response to the increasingly restrictive requirements regarding thermal transmittance of windows and doors, throughout Europe. Due to new construction possibilities, excellent thermal parameters of windows can be achieved.
Windows in the Blockprofile NL systems stand out as a very low heat transfer coefficient of Uf = 1.0 – 1.1 W/m2K. This puts them at the forefront in terms of thermal insulation. Their frame and sash assembly width of 113 mm allows for maximization of the glazed area, which is in line with current design trends.
Blockprofile NL systems, innovative solutions and excellent thermal parameters combined together, result in meeting stringent requirements regarding energy saving and energy efficiency. These modern profiles are ideal choice for those who strive to achieve excellent thermal parameters in their windows and, at the same time, want to enjoy the maximum glazed area – which is currently a popular design trend.
Stunning design
We produce our new Dutch windows taking into account various variants of external (AD) and central (MD) seals. Moreover, they are distinguished by diverse designs.
Ideal 7000 NL windows, with a slightly more traditional design, meet current market requirements and have 15-degree slants.
Ideal 8000 NL windows with a slightly more cubist style, are characterized by perpendicular surfaces and 7-degree slants.
Even though both systems have the same profile width of 113 mm, they differ visually. In the Ideal 8000 NL system, the lower sash is more hidden behind the higher frame. While in Ideal 7000 NL the outer surface of the visible sash is larger.
Thanks to this diversity, our Customers may choose right appearance which suits individual preferences and the architectural style of the building. The products ensure not only aesthetic solutions, but also excellent thermal performance and functionality. They provide great comfort and satisfaction to users.
The colors of our windows

AP19 Turner Oak Malt

AP07 Sheffield Oak Alpine 
AP21 Sheffield Oak Concrete 
AP22 Turner Oak Toffee
AP03 Anthracite Grey (Aludec)

AP04 Jet Black (Aludec)

AP07 Alux DB (Aludec)

AP08 Basalt Grey (Aludec)

AP12 Umbra Grey (Aludec)

AP36 Traffic White (Aludec)

AP37 Window Grey (Aludec)

AP40 Anthracite Grey (wood structure)

AP60 Anthracite Grey (sand structure)

AP61 Gray (sand texture)

AP63 Brushed Aluminum

AP65 Quartz Grey (sand texture)

AP71 Jet Black Matt

AP79 Alux DB

AP86 Papyrus White

AP90 Silky Grey

AP91 Concrete Grey

AP01 Special Oak

AP02 Natural Oak

AP11 Douglas fir

AP23 Golden Oak

AP25 Palisander

AP26 Dark Brown

AP27 Walnut

AP28 Walnut Terra

AP29 Walnut Amaretto

AP75 Sheffield Oak

AP93 Sheffield Oak Brown

AP94 Sheffield Oak Grey

AP95 Khaki Oak
CONTACT US